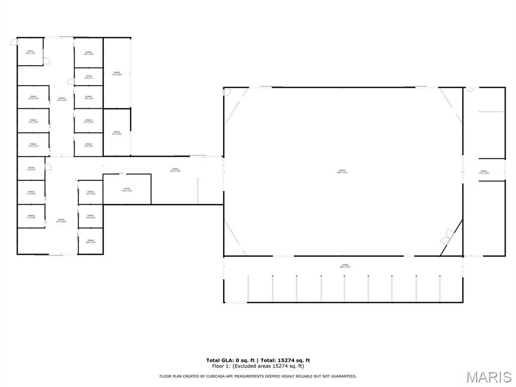
Horse Lovers Opportunity-- Estimated 16,000sf Equestrian Barn with 85' x 100' riding arena with connecting 12 stalls with Priefert stalls, floor mats and run in areas with feeding tie bays. 3 tack/feed rooms. The property is fenced and ready for livestock or a boarding operation. Pour-Max auto waterers. Located on 7.27 acres with riding and pasture area. Barn is serviced by Public water but has additional deep well to serve the farming operations. Troy School District. This is a Subdivided land parcel and more land is available. Make sure you look at the other LOTS available in this area- you may want to purchase more land, ranch style home, or outbuilding. Call Agent for Details.
DAYS ON MARKET
|
18
|
LAST UPDATED
|
9/25/2025
|
TRACT
|
none
|
YEAR BUILT
|
1996
|
COMMUNITY
|
458 - Troy R-3
|
GARAGE SPACES
|
4.0
|
COUNTY
|
Lincoln
|
STATUS
|
Active
|
PROPERTY TYPE(S)
|
Farms/Ranch
|
|
|
Elementary School |
Cuivre Park Elementary |
Jr. High School |
Troy Middle |
High School |
Troy Buchanan High |
AREA |
458 - Troy R-3 |
BARN/EQUESTRIAN |
Yes |
BASEMENT |
None |
CONSTRUCTION |
Frame, Steel Siding |
EXTERIOR |
Private Yard, Storage |
GARAGE |
Yes |
INTERIOR |
Lighting, Storage |
LOT |
7.27 acre(s) |
LOT DESCRIPTION |
Agricultural, Back Yard, Cleared, Farm, Few Trees, Gentle Sloping, Landscaped, Level, Native Plants, Pasture, Subdivided |
LOT DIMENSIONS |
7.27 acres |
PARKING |
Additional Parking, Attached, Detached, Driveway, Garage, Garage Faces Side, Oversized, Shared Driveway, Workshop in Garage |
STORIES |
1 |
STYLE |
Craftsman, Other, Western |
SUBDIVISION |
none |
TAXES |
1000 |
UTILITIES |
Electricity Available, Sewer Available, Water Available |
VIEW |
Yes |
VIEW DESCRIPTION |
Pasture |
WATER |
Private, Public, Shared Well, Well |
WATERFRONT DESCRIPTION |
Creek |
We respect your online privacy and will never spam you. By submitting this form with your telephone number
you are consenting for Gina
Pralle to contact you even if your name is on a Federal or State
"Do not call List".
Listing provided by RE/MAX Platinum
Listings displaying the MARIS logo are courtesy of the participants of Mid America Regional Information Systems Internet Data Exchange.
Disclaimer: Information From Third Parties, Deemed Reliable But Not Verified.
Any use of search facilities of data on this site, other than by a consumer looking to purchase real estate, is prohibited. No part of this search utility may be reproduced, adapted, translated, stored in a retrieval system or transmitted in any form or by any means, electronic, mechanical, photocopying, recording, or otherwise.
This IDX solution is (c) Diverse Solutions 2025.
Save favorite listings, searches, and get the latest alerts
Save your favorite listings, searches, and receive the latest listing alerts