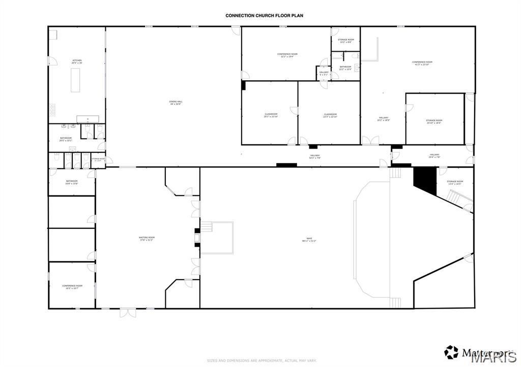
Seize this unique opportunity to own a versatile commercial property off Highway 67, just north of the Leadington exit, directly across from Mineral Area College. This high-traffic location offers exceptional visibility and accessibility, perfect for your next business venture! The main structure, a spacious 150 x 100-foot building, provides 15,000 square feet of flexible space currently housing Connection Church. With endless possibilities, this property could continue as a church or be transformed into a restaurant, banquet center, office building, or your dream project. The building features two main restroom facilities, an additional restroom with a shower, a large kitchen area, and multiple office or classroom spaces that can be reconfigured to suit your needs. With its strategic city location, high-traffic exposure, this property is a rare find. Incredible investment opportunity! Possible creative financing opportunity for a qualified buyer!
|
DAYS ON MARKET
|
4
|
LAST UPDATED
|
4/1/2026
|
|
TRACT
|
None
|
YEAR BUILT
|
1999
|
|
COMMUNITY
|
600 - St. Francois County
|
COUNTY
|
St. Francois
|
|
STATUS
|
Active
|
PROPERTY TYPE(S)
|
Commercial
|
| AIR |
Central Air, Electric, Gas |
| AIR CONDITIONING |
Yes |
| AREA |
600 - St. Francois County |
| CONSTRUCTION |
Metal Siding, Other |
| HEAT |
Electric, Forced Air |
| INTERIOR |
Bathrooms, Kitchen Facilities, Lobby, Storage |
| LOT |
4.68 acre(s) |
| STORIES |
1 |
| SUBDIVISION |
None |
| TAXES |
521 |
| UTILITIES |
Cable Available, Electricity Connected, Natural Gas Available, Sewer Available |
| WATER |
Private, Well |
We respect your online privacy and will never spam you. By submitting this form with your telephone number
you are consenting for Gina
Pralle to contact you even if your name is on a Federal or State
"Do not call List".
Listing provided by RE/MAX Best Choice
Listings displaying the MARIS logo are courtesy of the participants of Mid America Regional Information Systems Internet Data Exchange.
Disclaimer: Information From Third Parties, Deemed Reliable But Not Verified.
Any use of search facilities of data on this site, other than by a consumer looking to purchase real estate, is prohibited. No part of this search utility may be reproduced, adapted, translated, stored in a retrieval system or transmitted in any form or by any means, electronic, mechanical, photocopying, recording, or otherwise.
This IDX solution is (c) Diverse Solutions 2026.
Save favorite listings, searches, and get the latest alerts
Save your favorite listings, searches, and receive the latest listing alerts