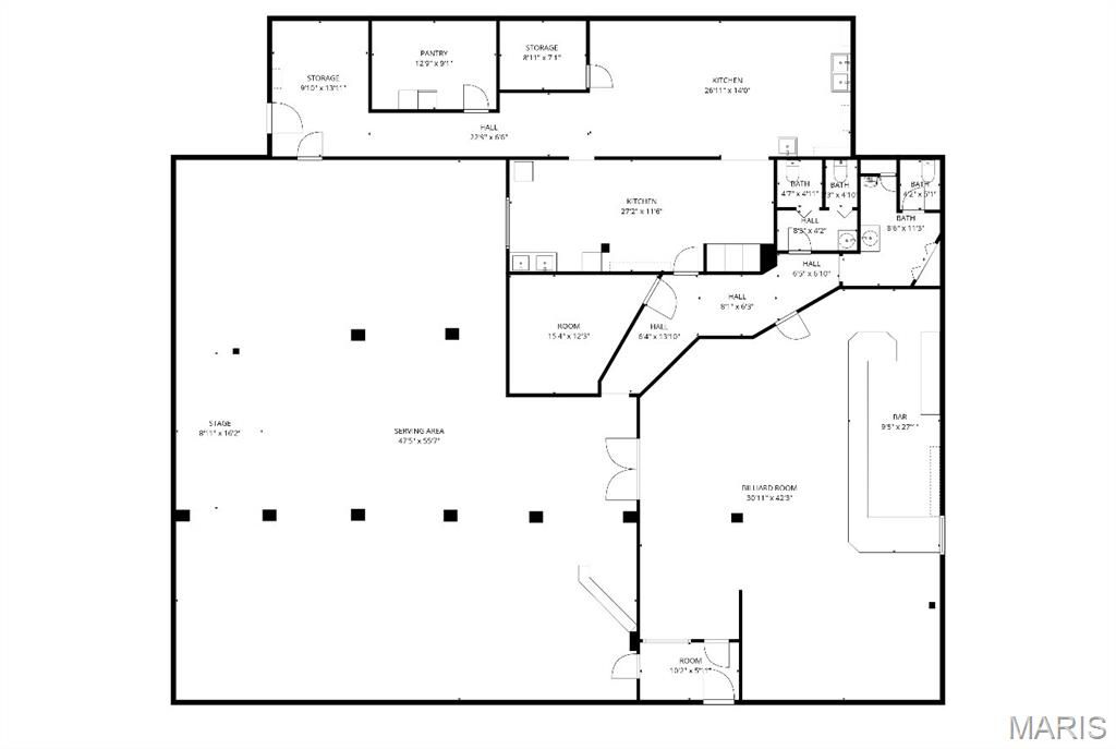
This exceptional restaurant property presents a rare opportunity to own a fully equipped, ready-to-operate space. Designed for both efficiency and guest experience, the layout seamlessly blends a welcoming dining atmosphere with a professional kitchen.
The commercial kitchen is outfitted with an extensive array of equipment, including a cooktop, grill, griddle, deep fryer, heat racks, hot plate warmer, and a commercial sink. A double smoker adds versatility for a variety of menu concepts, while the industrial range hood ensures proper ventilation and safety. The setup is ideal for chefs looking to execute everything from classic comfort food to specialty smoked dishes.
The dining area features a unique cold bar, enhancing service options and customer appeal. A large bar area provides ample space for guests to gather, making it perfect for social dining. The interior layout is both functional and inviting, offering flexibility for different seating arrangements.
Additional highlights include two dedicated storage rooms, providing plenty of space for inventory, supplies, and operational needs. With its comprehensive equipment package, spacious layout, and strong potential for high customer engagement, this property is an outstanding opportunity for restaurateurs ready to step into a well-equipped space and make it their own.
|
DAYS ON MARKET
|
3
|
LAST UPDATED
|
4/1/2026
|
|
TRACT
|
n/a
|
YEAR BUILT
|
1980
|
|
COMMUNITY
|
713 - Fredericktown
|
COUNTY
|
Madison
|
|
STATUS
|
Active
|
PROPERTY TYPE(S)
|
Commercial
|
|
Prior to Apr 1, '26
|
$149,999
|
| Apr 1, '26 - Today |
$159,900 |
| AIR |
Multi Units, Wall/Window Unit(s) |
| AIR CONDITIONING |
Yes |
| AREA |
713 - Fredericktown |
| CONSTRUCTION |
Other |
| HEAT |
Baseboard, Electric, Forced Air |
| INTERIOR |
Bathrooms |
| LOT |
4.53 acre(s) |
| STORIES |
1 |
| SUBDIVISION |
n/a |
| TAXES |
2214 |
| UTILITIES |
Electricity Connected |
We respect your online privacy and will never spam you. By submitting this form with your telephone number
you are consenting for Gina
Pralle to contact you even if your name is on a Federal or State
"Do not call List".
Listing provided by True Vision Realty, LLC
Listings displaying the MARIS logo are courtesy of the participants of Mid America Regional Information Systems Internet Data Exchange.
Disclaimer: Information From Third Parties, Deemed Reliable But Not Verified.
Any use of search facilities of data on this site, other than by a consumer looking to purchase real estate, is prohibited. No part of this search utility may be reproduced, adapted, translated, stored in a retrieval system or transmitted in any form or by any means, electronic, mechanical, photocopying, recording, or otherwise.
This IDX solution is (c) Diverse Solutions 2026.
Save favorite listings, searches, and get the latest alerts
Save your favorite listings, searches, and receive the latest listing alerts